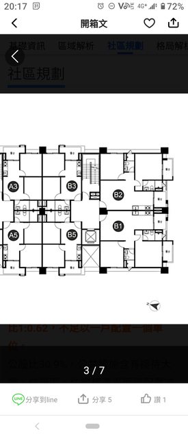
各位前輩好,目前有看上一間預售屋預計要夫妻自住,室內含陽台約23坪,建案四周都是無遮擋,現在比較傾向選擇B2,想請教各位前輩對格局的看法,第一次買房實在患得患失,謝謝 https://i.imgur.com/ECyyLeK.png
----- Sent from JPTT on my Sony J9210. -- ※ 發信站: 批踢踢實業坊(www.web-ptt.org.tw), 來自: 42.77.163.115 (臺灣) ※ 文章網址: https://www.web-ptt.org.tw/home-sale/M.1686573382.A.D3A
wentasu: 位向我也喜歡B2,雙陽台,雙衛浴開窗,唯一的缺點可能是 06/12 20:39
wentasu: 客廳算是暗廳。 06/12 20:39
wentasu: 雙衛浴沒配浴缸對我來說是遺憾。但看個人。 06/12 20:41
wentasu: 柱子佔的面積小,也是加分。 06/12 20:42
wentasu: 次卧的床鋪可能有壓樑的問題 06/12 20:43
Drither: 歐美包養真的很平常嗎? 06/12 20:43
wentasu: 廚房可考慮做小中島,兩人世界可以備料用兼餐桌。 06/12 20:46
lajji: 一層四戶只有一台電梯有夠可憐 06/12 20:50
lajji: 但只有一座樓梯樓層應該也不高 06/12 20:50
willko: 不喜歡暗廳 06/12 20:52
mp60707: 主加附都23了 還沒有明廳 這你買的下去? 06/12 21:30
Notker: 男友上包養網 該放生嗎 06/12 21:30
mp60707: 無遮擋 06/12 21:31
benson502: 無遮蔽是不是永久的要搞清楚 06/12 21:32